1418 N Bowman Rd
Spokane Valley, WA 99212

Scroll to Content

Details

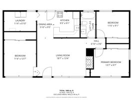
Have you ever wished there was an easy button for homeownership? Press it—and welcome to The Bowman. This zero-step 3 bed, 1 bath rancher is designed for buyers who want simplicity, comfort, and peace of mind. Since the seller’s purchase in 2023, this home has been thoughtfully and intentionally updated throughout, eliminating the need for projects, repairs, or guesswork. Major improvements include a kitchen remodel, bathroom remodel, all new flooring, and fresh interior paint, creating a clean feel from room to room. Behind the scenes, the home shines just as brightly with updated electrical, a whole-house water filtration system, tankless water heater (2023), mini-split system (2023), and a generator switch for added reliability and comfort. Exterior and efficiency upgrades include roof updates, new front and back gutter systems, a partially zero-scaped backyard, new irrigation system, & garden beds (all in 2025)! Just 12 mins to downtown & 12 mins to Spokane Valley Mall, check out the video tour for more!

  • $340,000
  • 3 Bedrooms
  • 1 Bathrooms
  • 1,012 Sq/ft
  • Lot 0.24 Acres
  • 2 Parking Spots
  • Built in 1949
  • MLS: 202610549

Images

Videos

Floor Plans