110 E Sapphire Ln Spokane WA 99208

Scroll to Content

Details

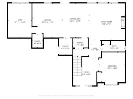
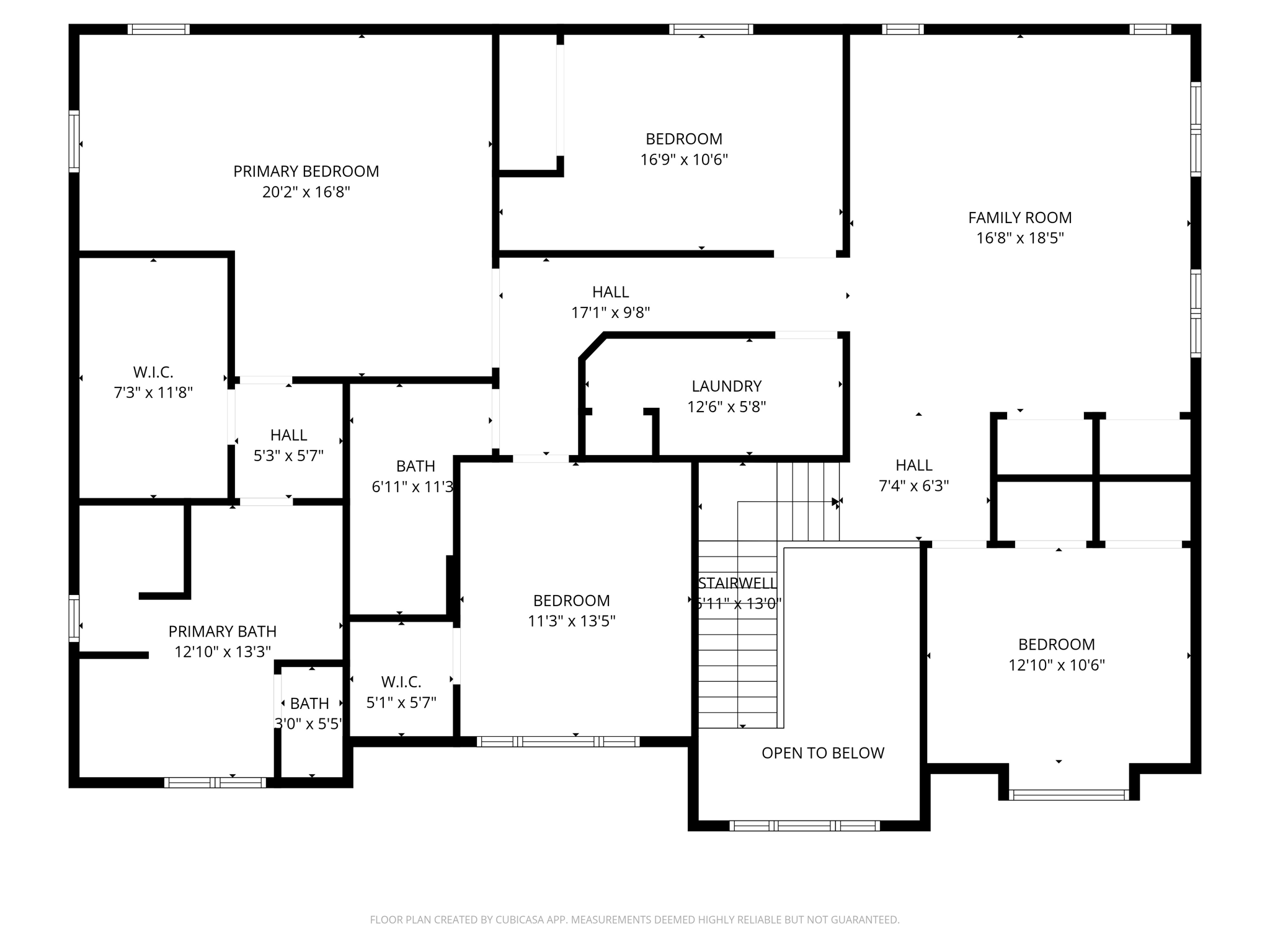
This Wandermere Heights home has the Condron quality of construction you love on the oversized, completely usable lot you've been waiting for! This backyard includes a huge grassy area, rock retaining wall with mature landscaping and beautiful waterfall. Stamped concrete patio (14x60) includes a covered area, plumbed-in gas fire pit and hot tub area too. The 12 ft gate leads to RV/boat parking complete with shed and the other side of the house has a garden setup. Inside you'll love the spacious great room and kitchen with gas stove, walk-in pantry and tons of cabinetry with granite countertops. Main floor office has a closet (5th bed) and the gym space is set up behind the kitchen, that room could be used for anything! Huge primary suite and 3 beds upstairs along with 2nd family room. You're going to love all the extra closets and storage everywhere! Dual zone HVAC and 2 water heaters will make sure you're always comfortable. Gated neighborhood, HOA only $45/month. Meticulously maintained!

  • $874,900
  • 5 Bedrooms
  • 3 Bathrooms
  • 3,430 Sq/ft
  • Lot 0.25 Acres
  • 3 Parking Spots
  • Built in 2017
  • MLS: 202612604

Images

Videos

Content Coming Soon

Floor Plans

Contact

Feel free to contact us for more details!

Kristina Bartlett

THRIVE Properties

+15098684591

kbartlett@kw.com